2-к. квартира, 53.1 м²
Продажа квартир на любой вкус и бюджет
Задаток до 6 марта (включительно).
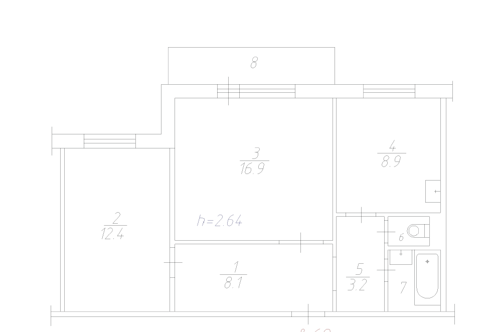
Новая планировка, комнаты изолированные, кухня 9 кв.м., зал квадратный 17 кв.м., спальня 12.4 кв. Ванна и туалет разделены. Длинный балкон с выходом из зала. Окна выходят в сторону парка.

Дом 2009 года постройки. Красивый фасад, большой лифт - можно перевозить велосипеды или «диваны».

В шаговой доступности Парк Гвардейский и сквер Космонавтов, остановки в 300м от дома, школы, детская и взрослая инфраструктура.

Красивый вид из окон на перспективу зеленого массива. Планировка на одну сторону.

Требуется косметический ремонт, ванна в стеновых панелях, окна пластиковые. Остается кухня без техники, шкаф в прихожей, модульная стенка в зале.

Юридически готовая к сделке квартира, полная цена в договоре, без перепланировок, без детей, чистая продажа. Люая форма расчета.

Покажем по договоренности.
Ссылка на объявление: https://nkvartal24.ru/sale/saleapartments/179781
5 900 000
Екатерина


Красноярский край, Красноярск, Советский район, улица Быковского, д 5Д
redeemДанный объект можно приобрести в ипотеку

Информация об объекте

Количество комнат2-к квартира Этаж8 Площадь53.1 Жилая площадь30 Площадь кухни9 Балкон1 Раздельных санузлов1 ОкнаДвор РемонтКосметический

Информация о доме

Год постройки2009 Тип домаПанельный Этажей в доме10 Лифты грузовые1 МусоропроводЕсть ПарковкаНаземная